Πολυκατοικία στην Καλλιθέα
Τίτλος

Πολυκατοικία

Τοποθεσία

Καλλιθέα, Αθήνα

Τύπος

Αρχιτεκτονικός Σχεδιασμός

Ημερ/νία

2024

Φάση Έργου

Υπό κατασκευή

Περιγραφή Έργου:

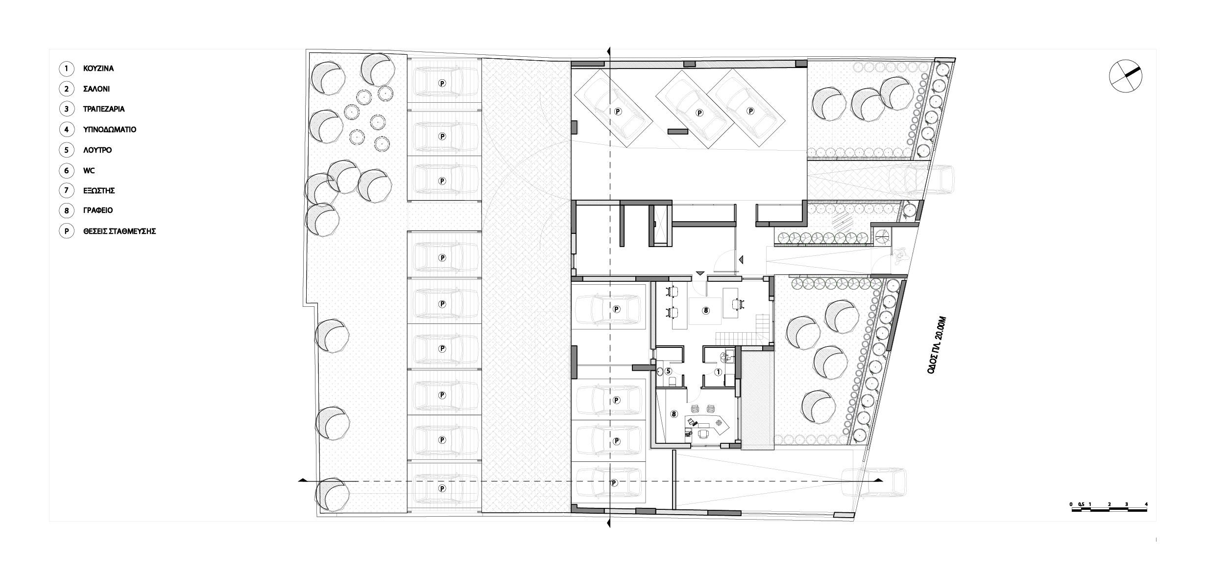
Η επταώροφη πολυκατοικία στην Καλλιθέα αποτελεί ένα πρότυπο σύγχρονου σχεδιασμού, που συνδυάζει την αισθητική με τη λειτουργικότητα. Ο σχεδιασμός της βασίστηκε τόσο στις ιδιαιτερότητες του οικοπέδου, με το σχήμα του να καθορίζει την οργάνωση των εσωτερικών και εξωτερικών χώρων όσο και στη λειτουργική διάταξη των διαμερισμάτων σε επίπεδο κάτοψης και όψης.  Σε επίπεδο κάτοψης, κάθε όροφος φιλοξενεί συγκεκριμένο αριθμό διαμερισμάτων, διαρθρωμένα με τέτοιο τρόπο ώστε να εξασφαλίζεται η ιδιωτικότητα, η άνεση και η βέλτιστη εκμετάλλευση του φυσικού φωτισμού και αερισμού. Σε επίπεδο όψης, κύριος άξονας σχεδιασμού ήταν η απόδοση της κάτοψης στην όψη, ώστε να γίνονται διακριτές οι λειτουργίες και οι ιδιοκτησίες του κτιρίου.

Στην επιλογή των υλικών, βασική επιθυμία ήταν η χρήση μικρού αριθμού υλικών για τη διαφοροποίηση του ανοιχτού με το κλειστό, τον τονισμό των λειτουργικών στοιχείων της πολυκατοικίας και τον διαχωρισμό των ιδιαίτερων αρχιτεκτονικών της στοιχείων. Σε αυτή την κατεύθυνση επιλέχθηκε η εναλλαγή του εμφανούς σκυροδέματος με σοβά σε υπόλευκες αποχρώσεις  καθώς και η χρήση μεταλλικών στοιχείων με διαφορετικούς τρόπους και αποχρώσεις ανάλογα με τη χρήση.

Η μελέτη εκπονήθηκε σε συνεργασία με την αρχιτέκτονα μηχανικό Δέσποινα Σωτηρίου