Η-Η House
Τίτλος

Η-Η House

Τοποθεσία

ΑΡΤΕΜΙΔΑ, ΑΤΤΙΚΗ

Τύπος

ΑΡΧΙΤΕΚΤΟΝΙΚΗ ΜΕΛΕΤΗ

Ημερ/νία

2024

Περιγραφή Έργου:

 

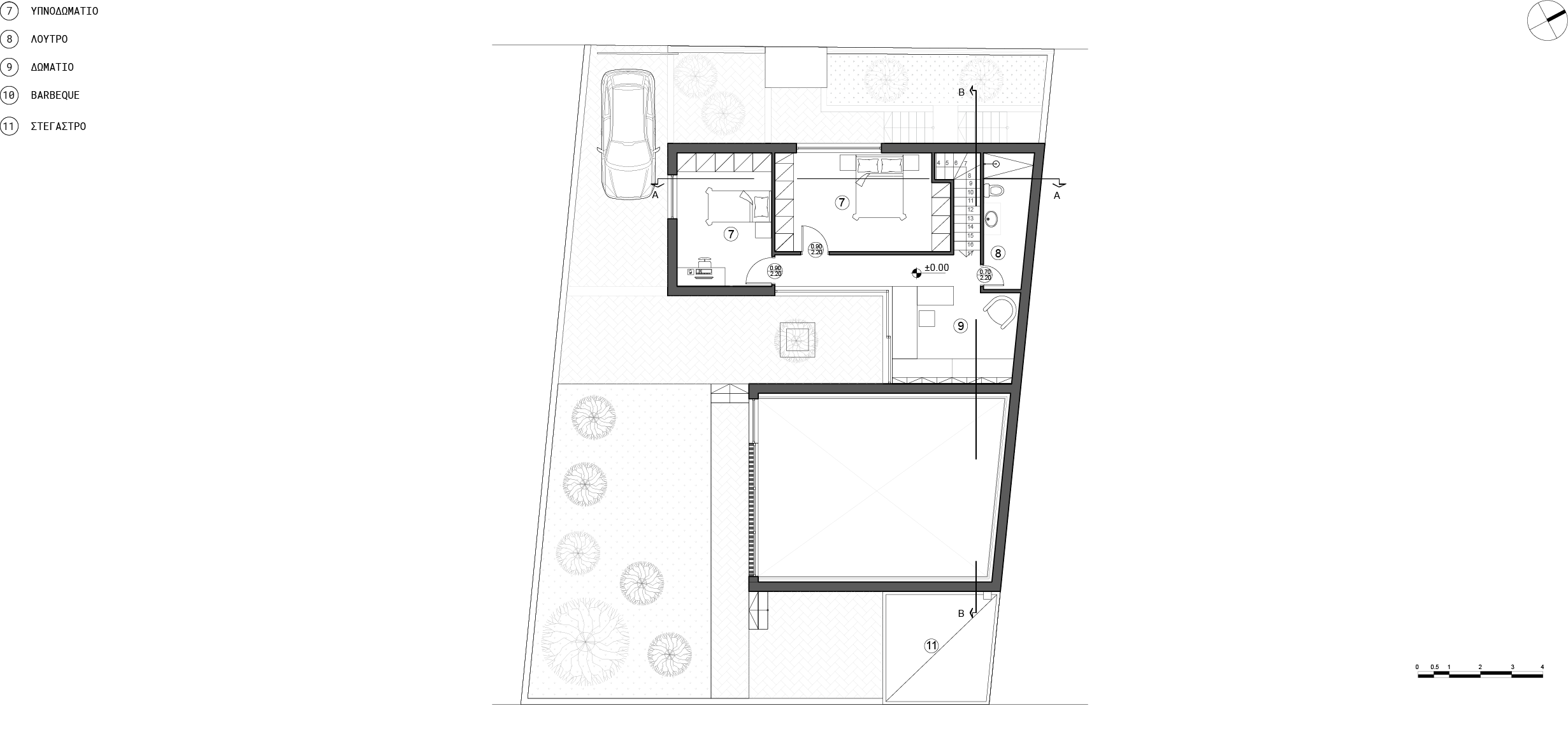
Η κατοικία Η-Η House βρίσκεται σε μεσαίο οικόπεδο μικρής κλίσης, εντός του οικισμού της Αρτέμιδας. Στα όμορα οικόπεδα έχουν κατασκευαστεί κτίρια τα οποία και περιορίζουν τη θέα προς τη θάλασσα. Με το δεδομένο αυτό επιλέχθηκε η λύση του εσωστρεφή σχεδιασμού, που εστιάζει στη δημιουργία εναλλασόμενων κήπων και την εξασφάλιση άπλετου φυσικού φωτισμού στους διαμορφούμενους χώρους.

Tο σχήμα Π σε κάτοψη επιλέχθηκε για να αποδώσει την έννοια της εσωτερικότητας και της προστασίας, καθώς οι πλευρές του Π επιτρέπουν τη ροή των κινήσεων, ενώ παράλληλα ενισχύουν την αίσθηση ενός συνεκτικού και προστατευόμενου περιβάλλοντος. Η συγκεκριμένη μορφή δημιουργεί ένα ημι-περιμετρικό χώρο αφήνοντας μια πλευρά ανοιχτή προς έναν εσωτερικό κήπο. Αυτός ο εσωτερικός χώρος που προκύπτει λειτουργεί ως αυλή, προσφέροντας έναν ημι-ιδιωτικό υπαίθριο περιβάλλον που συνδέει τους εσωτερικούς με τους εξωτερικούς χώρους. Η σύνδεση αυτή επιτυγχάνεται μέσω των ανοιγμάτων, που τοποθετούνται με τρόπο που ενισχύει τη λογική της εσωστρέφειας, με τη δημιουργία μικρότερων ανοιγμάτων προς τον δρόμο και μεγαλύτερων ανοιγμάτων προς το εσωτερικό του οικοπέδου και τους πράσινους χώρους.  Ως αποτέλεσμα στον εσωτερικό χώρο  αξιοποιείται ο φυσικός φωτισμός και αερισμός, βελτιώνοντας την ποιότητα διαβίωσης.

Η ιδιαιτερότητα της κατοικίας είναι ότι περιλαμβάνει και στούντιο ηχογράφησης, καθώς ο ένας ιδιοκτήτης είναι μουσικός. Στη μία πτέρυγα του Π (προς τον δρόμο), λοιπόν τοποθετείται η χρήση της κατοικίας  και στην άλλη πτέρυγα (προς τον ακάλυπτο) το στούντιο ηχογράφησης. Το τμήμα που ενώνει τις δύο πτέρυγες αποτελεί μεταβατικό χώρο σύνδεσης των δύο χρήσεων.

Σημαντικό στοιχείο του σχεδιασμού ήταν η ενιαία μορφολογική αντιμετώπιση της κατοικίας μέσω της χρήσης ενός υλικού, του σκυροδέματος, για εφαρμογή σε όλην την επιφάνεια του εξωτερικού κελύφους.

SHARE PROJECT