Ξενώνας “Mάτσα”
Τίτλος
Τίτλος
Τίτλος

Ξενώνας

Τοποθεσία

Ιωάννινα

Τύπος

Αποκατάσταση και επανάχρηση διατηρητέου κτηρίου

Ημερ/νία

2003

Φάση Έργου

Υλοποιημένο

Περιγραφή Έργου:

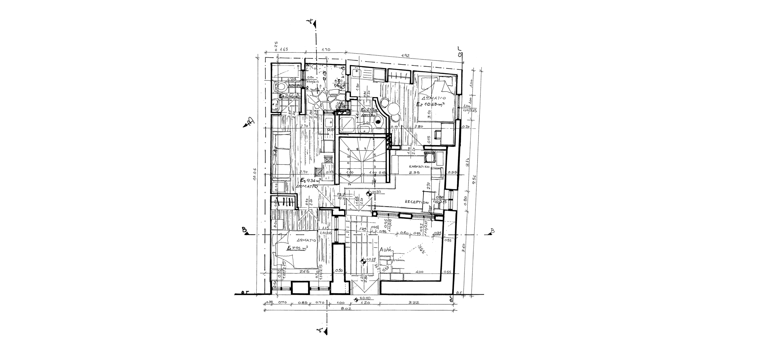
Μια τυπική διώροφη κατοικία με υπόγειο της Εβραϊκής συνοικίας των Ιωαννίνων κατασκευάστηκε σε σχήμα Γ μέσα σε ένα τετραγωνισμένο γωνιακό οικόπεδο, περί τα τέλη του 19ου αιώνα, πάνω στα θεμέλια ενός παλαιότερου κτίσματος, που καταστράφηκε με τη μεγάλη πυρκαγιά του 1880. Από το αρχικό κτίσμα διασώζεται ο αρκετά και μοναδικά ψηλός πέτρινος αυλόγηρος της εσωστρέφειας, της ασφάλειας και της απομόνωσης από το δημόσιο χώρο.

Μετά την πυρκαγιά η διώροφη αυτή κατοικία ανακατασκευάστηκε δεχόμενη πολλές, διαχρονικά, επεμβάσεις, ανάλογα με τις ανάγκες των οικογενειών που την κατοικούσαν, μέχρι να εγκαταλειφθεί και να υποστεί τις φθορές του χρόνου. Το έτος 2003 που εκπονήθηκε η μελέτη συντήρησης, επισκευής, ανάδειξης και μετατροπής της κατοικίας σε τουριστικό κατάλυμα η κατάστασή της ήταν πολύ κακή. Η στέγη είχε διαλυθεί, οι τοίχοι παρουσίαζαν ισχυρές ρηγματώσεις, τα ταβάνια και τα πατώματα είχαν σαπίσει και τα κουφώματα χρειάζονταν αντικατάσταση.Η υλοποίηση της μελέτης, με συμβολή εν μέρει κονδυλίων της Ευρωπαϊκής Ένωσης, οδήγησε στην ανάκτηση της μορφής και της αρχιτεκτονικής φυσιογνωμίας του κτηρίου καθώς τα υλικά και ο τρόπος δομής, που επιλέχθηκαν, ακολούθησαν τη Γιαννιώτικη αρχιτεκτονική παράδοση.